仮定断面
10/02/15
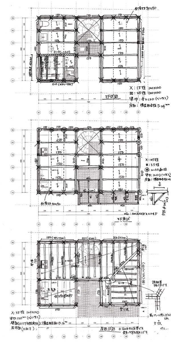
・仮定断面検討
*柱・梁をどのように架けるか構造の検討。

nyh-TOP